BIỆN PHÁP THI CÔNG TÁC NGẦM ĐẶT ỐNG HDPE
BIỆN PHÁP THI CÔNG - CÔNG TÁC NGẦM - ĐẶT ỐNG HDPE
METHOD OF STATEMENT FOR UNDERGROUND WORK - INSTALL HDPE PIPE
BIỆN PHÁP THI CÔNG - CÔNG TÁC NGẦM - ĐẶT ỐNG HDPE
METHOD OF STATEMENT FOR UNDERGROUND WORK - INSTALL HDPE PIPE
Phạm vi công việc
Thi công cắt, đào và mở hố đặt máy khoan ngầm và hố chờ khoan
Thi công khoan ngầm ngang tuyến băng đường (5 vị trí)
Thi công đào cắt mương cáp và đặt hố ga điện và ống HDPE, tái lập mặt bằng
Yêu cầu về an toàn
Được huấn luyện an toàn tại VAL trước khi thực hiện công việc.
Xin giấy phép làm việc đối với khu vực làm việc đã được xác định theo yêu cầu của dự án.
Trình phương pháp thi công và đánh giá rủi ro trước khi thực hiện công việc.
Máy móc, trang thiết bị thi công được kiểm tra đảm bảo đủ điều kiện làm việc như yêu cầu từ VAL.
Không di chuyển qua khu vực khác
Làm việc dưới sự giám sát của Ban an toàn dự án và VAL
Tuân thủ các yêu cầu an toàn chung theo quy định của VAL và yêu cầu pháp lý.
Điền đầy đủ tất cả các tài liệu an toàn cho thiết bị, phương tiện và con người theo yêu cầu pháp lý và yêu cầu của VAL.
Thời gian làm việc từ 7.30 sáng đến 5.30 giờ chiều.
Tiến hành trao đổi về an toàn ngay trước khi triển khai nhiệm vụ
Thực hiện theo bản vẽ thi công (shop drawing) được duyệt có thể hiện rõ vị trí, kích thước thi công.
FUJI CAC sẽ hoàn toàn chịu trách nhiệm khi xảy ra sự cố, tai nạn trong quá trình thực hiện công việc nếu FUJI CAC không tuân thủ các quy định về an toàn.
Công tác chuẩn bị
Chuẩn bị bản vẽ thi công đã ký duyệt bởi tư vấn giám sát và chủ đầu tư VAL.
Có giấy phép làm việc trong ngày đã được sự chấp thuận của giám sát an toàn chủ đầu tư và tư vấn
Vật tư thi công được kiểm tra và nghiệm thu trước khi sử dụng
Máy móc, trang thiết bị thi công được kiểm tra đảm bảo đủ điều kiện làm việc như yêu cầu từ VAL. Danh sách dụng cụ thi công chính như bên dưới:
Căng dây, rào che chắn đặt biển cảnh báo khu vực thi công
Phổ biến biện pháp thi công cho công nhân, bố trí giám sát an toàn và kĩ thuật liên tục (100%) trong quá trình thi công
Phổ biến Biện pháp thi công, Đánh giá rủi ro và kiểm tra an toàn vị trí làm việc trước khi công nhân bắt đầu làm việc. Treo giấy phép thi công tại nơi làm việc
Các công tác Mở lỗ khoan, khoan, đào mương, đặt ống phải có sự phối hợp với nhà thầu xây dựng, các bên liên quan nhằm đảm bảo không ảnh hưởng đến hệ thống hiện hữu (điện, cống, hố ga thoát nước…) đúng tuyến, đúng vị trí, phù hợp với thực tế.
Trang bị bình chữa cháy tại nơi làm việc.
|
Stt |
Nội Dung |
Công suất |
ĐVT |
Số lượng |
|
I |
Thiết bị khoan ngầm |
|||
|
1 |
Máy khoan D20x50 (Lmax:1000 mm, Dmax: 2200 mm) |
100hp |
Bộ |
01 |
|
2 |
Bộ trộn dung dịch khoan |
50 lít |
Bộ |
03 |
|
3 |
Bộ định vị đầu khoan Fancol F2 |
25,9m |
Bộ |
01 |
|
4 |
Máy đo sâu |
80m |
Cái |
01 |
|
5 |
Máy bơm nước |
5 Kw |
Cái |
01 |
|
6 |
Máy khoan cắt Bê Tông |
1,5 KW |
Cái |
01 |
|
7 |
Bộ dụng cụ thiết bị cơ khí và dụng cụ đào đất |
|
Bộ |
01 |
|
8 |
Bộ tời, kich thủy lực |
15 T |
Bộ |
01 |
|
9 |
Bơm hút bentonie thu hồi |
2.5 KW |
cái |
01 |
|
10 |
Máy múc |
|
Cái |
01 |
Biện pháp thi công
Thi công cắt, đào và mở hố đặt máy khoan ngầm và hố chờ khoan:
Bước 1: Xác định vị trí, cao độ của hố, mương đào, đánh dấu theo bản vẽ shopdrawing đã được phê duyệt bới VAL/ TVGS
Bước 2: Giăng dây cảnh báo, lắp lan can bao che và đặt biển báo hiệu khu vực thi công
Bước 3: Cắt đường nhựa/ vỉa hè bê tông như vị trí đánh dấu theo kích thước của hố máy khoan.
Bước 4: Tiến hành sử dụng máy múc và sức người để đục, đào lớp đường nhựa/ bê tông vỉa hè, đào đất lớp dưới cho đến khi hoàn thiện cao độ hố như bản vẽ thi công được duyệt.
Bước 5: Thu gom dọn xà bần, đất ra khu vực được chỉ định và phải được bao che cảnh báo khu vực chứa xà bần.
Bước 6: Kiểm tra hố khoan đạt yêu cầu trước khi bắt đầu thực hiện công tác khoan ngầm.
Biện pháp thi công cho công nghệ khoan ngang bằng máy khoan định hướng.
Phương án thi công: Thi công đào hố thi công hai bên đường và dùng máy khoan ngầm ngang định hướng trước, khoan phá mở rộng lỗ khoan đủ kích thước để kéo ống HDPE
Sơ đồ công nghệ thi công khoan ngầm ngang:
|
Hoàn thiện và bàn giao mặt bằng |
|
Khoan lỗ khoan dẫn hướng, doa đường hầm. |
|
Kéo, lắp đặt ống |
|
Trám lỗ khoan bằng dung dịch khoan benntonite |
|
Chuẩn bị công tác khoan |
v. Các bước thi công:
Bước 1: Kiểm tra mặt bằng trước khi thi công
Đội thi công tiến hành khảo sát bàn bạc tính toán trên thực tế đặc điểm nền đất, các trở ngại hiện hữu nếu có (đường dây, cáp ngầm, ống cống,…), xác định được vị trí đặt máy khoan, đặt lồng, mặt bằng chuẩn bị kéo, phương án thi công tập kết thiết bị, vật tư, các trở ngại có thể gặp và đề xuất giải pháp đẩy nhanh tiến độ nếu có.
Bước 2: Dọn dẹp, đo đạc định vị tim tuyến, lắp dựng biển báo giao thông.
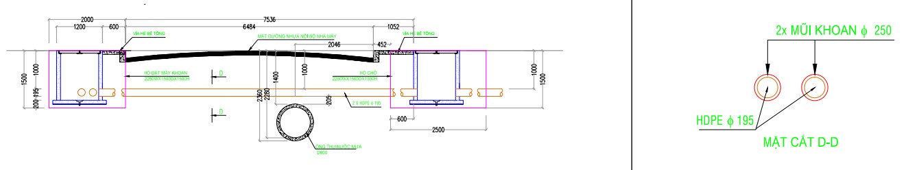
Bước 3: Lắp đặt máy khoan dẫn hướng để định hướng tim tuyến ống. Mũi khoan có gắn định vị kể kiểm soát vị trí và hướng khoan
Bước 4: Tháo mũi khoan dẫn hướng, lắp đặt xích kéo và tời kéo tải trọng 10T. Lắp đặt các mũi khoan D450, D250, D250, D150 liền đoạn ống bao D195, D105. Lắp đặt hệ kích đẩy 10T. Trong đó: Mũi khoan điều khiển bằng bơm thủy lực có mô men xoắn 80kN.m.
Bước 5: Tiến hành khoan và kích kéo ống
• Vị trí số 1: Khoan 02 mũi khoan D450. Vị trí ống khoan nằm dưới và cách đáy ống thoát nước hiện hữu 148mm.
• Vị trí số 2 và số 3 (Ống thoát nước mưa cách mặt đường 1,3 m): Khoan 02 mũi khoan D250 và 01 mũi khoan D250. Vị trí ống khoan nằm trên và cách đỉnh trên ống thoát nước hiện hữu 177.5mm.
• Vị trí số 4 (Ống nước mưa cách mặt đường 1,3 m) : Khoan 02 mũi khoan D250. Vị trí ống khoan nằm trên và cách đỉnh trên ống thoát nước hiện hữu 177.5mm
• Vị trí số 5 (Ống nước mưa cách mặt đường 1,24 m): Khoan 01 mũi khoan D150. Vị trí ống khoan nằm trên và cách đỉnh trên ống thoát nước hiện hữu 107mm
Tiến hành khoan với tốc độ khoảng 50cm/h. Vừa khoan vừa tăng dần lực tời kéo và kích ống để kéo ống và mũi khoan về phía trước. Tiến hành căn chỉnh định vị chính xác đoạn ống bao đầu tiên.
Bước 7: Đất được chuyển ra ngoài bằng hệ guồng xoắn ốc. Các đoạn ống tiếp theo được liên kết cơ khí chắc chắn với đoạn ống trước mới tiếp tục tiến hành khoan kéo đẩy.Tiến hành khoan tuần tự đến khi hoàn thành lỗ khoan.
Bước 8: Hoàn trả mặt bằng thi công, tháo dỡ máy khoan và bàn giao công trình.
Sau khi đã lắp ống qua lỗ khoan dung dịch khoan bentonite sẽ tự động đông kết để chống sạt lở trong lỗ khoan, đảm bảo độ bền vững kết cấu của thành lỗ khoan cũng như nền đường hiện hữu. Sau khi đã lắp đặt ống theo thiết kế ta tiến hành bịt một đầu hố khoan bằng tấm thép để làm kín bên hố đón (Hố tiếp nhận), để tránh bùn, đất đá tràn vào ống.
Bước 9: Hoàn trả mặt bằng thi công, tháo dỡ máy khoan và bàn giao công trình.
Bước 10: Cẩu đặt hố ga điện tại vị trí hố đặt máy khoan và hồ chờ như bản vẽ được phê duyệt bởi VAL (Phương án thi công chi tiết tham khảo mục 3.3 bên dưới)
Hố tiếp nhận và hố thi công được dọn vệ sinh sạch trước khi bàn giao tiếp tục làm công tác đấu nối hệ thống ống và hoàn thiện mặt bằng.
3. Thi công đào cắt mương cáp và đặt hố ga điện và ống HDPE, tái lập mặt bằng:
Mô tả phạm vi công việc:
Thi công cắt mặt đường hiện hữu/ Vỉa hè bê tông hiện hữu theo kích thước thể hiện trên bản vẽ thi công được duyệt bởi VAL
Đào đất theo cao độ của mương cáp, hố ga điện (manhole) được duyệt.
Lắp đặt Hố ga điện đúc sẵn.
Đổ rải cát san lấp, lắp đặt ống HDPE toàn tuyến mương và kết nối với Hố ga điện.
Đặt gạch thẻ làm dấu, dải băng cảnh báo cáp điện ngầm, san lấp hoàn thiện mặt bằng như bản vẽ thi công được duyệt.
- Các bước thi công:
Bước 1: Kiểm tra lại mặt bằng làm việc trước khi tiến hành thi công
Bước 2: Xác định và đánh dấu vị trí, cao độ của hố, mương đào theo bản vẽ shopdrawing đã được phê duyệt
Bước 3: Cắt đường/ vỉa hè và đào đất cho hố cáp và mương cáp
Bước 4: Chỉnh sửa lại mương và hố đào, đầm chặt đất, kiểm tra cao độ mương đào. Đáy rãnh mương phải bằng phẳng.
Bước 5: Lắp đặt Hố ga điện đúc sẵn
Bước 6: Lắp đặt ống HDPE
- Duỗi ống bằng cách lăn cuộn ống HDPE dọc theo rãnh. Không kéo để ống không bị xoắn
- Đặt ống theo kích thước bản vẽ thi công được duyệt. Ống sẽ được đặt trên gối đỡ HDPE. Khi đặt ống BFP, cần chú ý không để đất cát, nước lọt vào qua đầu ống. Nếu ống được chở tới công trường ở dạng cuộn thì khi đặt cần tuân thủ qui trình sau. Duỗi thẳng ống bằng cách lăn cuộn ống dọc theo rãnh, có 3 hoặc 4 công nhân giữ để ống không bị biến dạng. Nếu kéo mà không lăn, ống sẽ bị xoắn
- Sắp ống và lấp cát:
+ Ống sẽ được đặt trên gối đỡ HDPE. Xếp gối đỡ thẳng hàng theo khoảng cách qui định dọc
Gối đỡ ống nhựa xoắn
Rải ống trên toàn tuyến theo các đường thẳng. Ban đầu các ống có thể chưa thẳng hàng sẽ chỉnh lại ở bước sau.
Sử dụng măng sông để nối các đường ống lại với nhau.
Chỉnh lại lần cuối các đường ống cho thẳng hàng.
Cân chỉnh thẳng sau đó tiến hành lấp cát bằng thủ công hoặc bằng máy múc.
Lấp rãnh mương cáp
Sau khi kiểm tra độ thông thoát, thẳng của đường ống, tiến hành dùng cát san lấp để lấp rãnh
Tiến hành đặt, xếp gạch thẻ làm dấu và Băng cảnh báo trình tự và kích thước đặt theo bản vẽ thi công được duyệt.
San lấp, đầm chặt lớp cát tiếp theo và lớp đất san lấp cuối theo kích thước bản vẽ thi công được duyệt.
Đầm chặt lớp đất phía trên mương cáp và lắp đặt Đánh dấu tuyến cáp ngầm trên mặt mương cáp. Kích thước 20m một vị trí đánh dấu.
Bước 7: Nghiệm thu
Các bước thực hiện đều có sự kiểm tra và giám sát của tư vấn. Sau khi hoàn thành công việc lắp đặt, nhà thầu sẽ mời tư vấn giám sát nghiệm thu để chuyển sang giai đoạn tiếp theo.
v. Hồ sơ kỹ thuật kèm theo:
- Các Bản vẽ thi công kèm theo:
+ VAL2201-CS-SHD-001.05 - MẶT BẰNG TUYẾN ỐNG ĐIỆN HDPE CHÔN NGẦM CHO LINE 2 (trang 1 &2/5)
+ VAL2201-CS-SHD-001.05 - MẶT BẰNG HỐ KHOAN NGẦM ĐẶT ỐNG HDPE (trang 3/5)
+ VAL2201-CS-SHD-001.05 - BẢN VẼ CHI TIẾT HỐ GA ĐIỆN (trang 4/5)
+ VAL2201-CS-SHD-001.05 - CHI TIẾT TUYẾN KHOAN NGẦM BĂNG ĐƯỜNG (trang 5/5)
JSA cho CÔNG TÁC NGẦM - ĐẶT ỐNG HDPE.
xem thêm: BIỆN PHÁP THI CÔNG KHOAN HDD

CÔNG TY CP TƯ VẤN ĐẦU TƯ & THIẾT KẾ XÂY DỰNG MINH PHƯƠNG
Địa chỉ: Số 28B Mai Thị Lựu, Phường Đa Kao, Q.1, TPHCM
Hotline: 0903649782 - (028) 3514 6426
Email: nguyenthanhmp156@gmail.com













Xem thêm